| 物件名 | CASA Asteria fukushima Ⅶ |
|---|---|
| 所在地 |
大阪府大阪市福島区海老江4丁目7-24
|
| 物件種別 | 販売 |
| 賃料/価格 | 3,300万円 |
| 共益費・管理費等 | |
| 敷金・礼金 | |
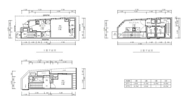
| 間取り | |
| 交通 | ・JR東西線「海老江駅」徒歩8分 ・大阪メトロ千日前線「野田阪神駅」徒歩10分 ・阪神本線「野田駅」徒歩11分 |
| ペット |
| 築年数 | 7年 | 建物面積 | ・土地面積:49.58㎡ ・建物面積:56.34㎡ |
|---|---|---|---|
| 階層 | 駐車場 | ||
| 構造・工法 | 木造3階建 | 取引態様 | 媒介 |
| 引渡 / 入居時期 | 相談 | 現況 | 賃貸中 |
| 特徴 | ■オーナーチェンジ物件 ■2019年11月建築 ■3WAYアクセス可能 |
||
| 管理形態 | ・満室表面利回り:5.21% | ||
| 周辺環境 | ・イオンスタイル海老江店 約430m(徒歩5分) ・セブンイレブン大阪海老江2丁目店 約225m(徒歩3分) ・海老江上公園 約265m(徒歩3分) |
||
| 自社物 | 状態 | 販売中 | |
| 情報登録日 | 情報更新日 | ||
| 物件資料 | |||
| 物件番号 | |||









